|
||||||||||||||||||||||||||||||
| Обозначение: | ![]() ГОСТ 25098-2025 |
| Статус: | действует |
| Название рус.: | Панели перегородок железобетонные для зданий промышленных и сельскохозяйственных предприятий. Технические условия |
| Название англ.: | Reinforced concrete panels for partitions in industrial and agricultural buildings. Specifications |
| Дата актуализации текста: | 01.01.2026 |
| Дата актуализации описания: | 01.01.2026 |
| Дата регистрации: | 29.08.2025 |
| Дата издания: | 10.10.2025 |
| Дата введения: | 01.01.2026 |
| Взамен: | ГОСТ 25098-2016 |
| Нормативные ссылки: | ГОСТ 535; ГОСТ 5781; ГОСТ 7473; ГОСТ 8267; ГОСТ 8736; ГОСТ 8829; ГОСТ 10060; ГОСТ 10180; ГОСТ 10181; ГОСТ 10922; ГОСТ Р 57997-2017; ГОСТ 12730.0; ГОСТ 12730.1; ГОСТ 12730.5; ГОСТ 13015; ГОСТ 14098; ГОСТ 16504; ГОСТ 17623; ГОСТ 17624; ГОСТ 17625; ГОСТ 18105; ГОСТ 22690; ГОСТ 22904; ГОСТ 23009; ГОСТ 23616; ГОСТ Р 58943-2020; ГОСТ 23732; ГОСТ 23858; ГОСТ 24211; ГОСТ 24297; ГОСТ 25192; ГОСТ 25781; ГОСТ 25820; ГОСТ 26134; ГОСТ 26433.01; ГОСТ Р 58941-2020; ГОСТ 26433.12; ГОСТ Р 58939-2020; ГОСТ 26633; ГОСТ 27006; ГОСТ 27751; ГОСТ 30108; ГОСТ 30247.1; ГОСТ 30403; ГОСТ 34028 |
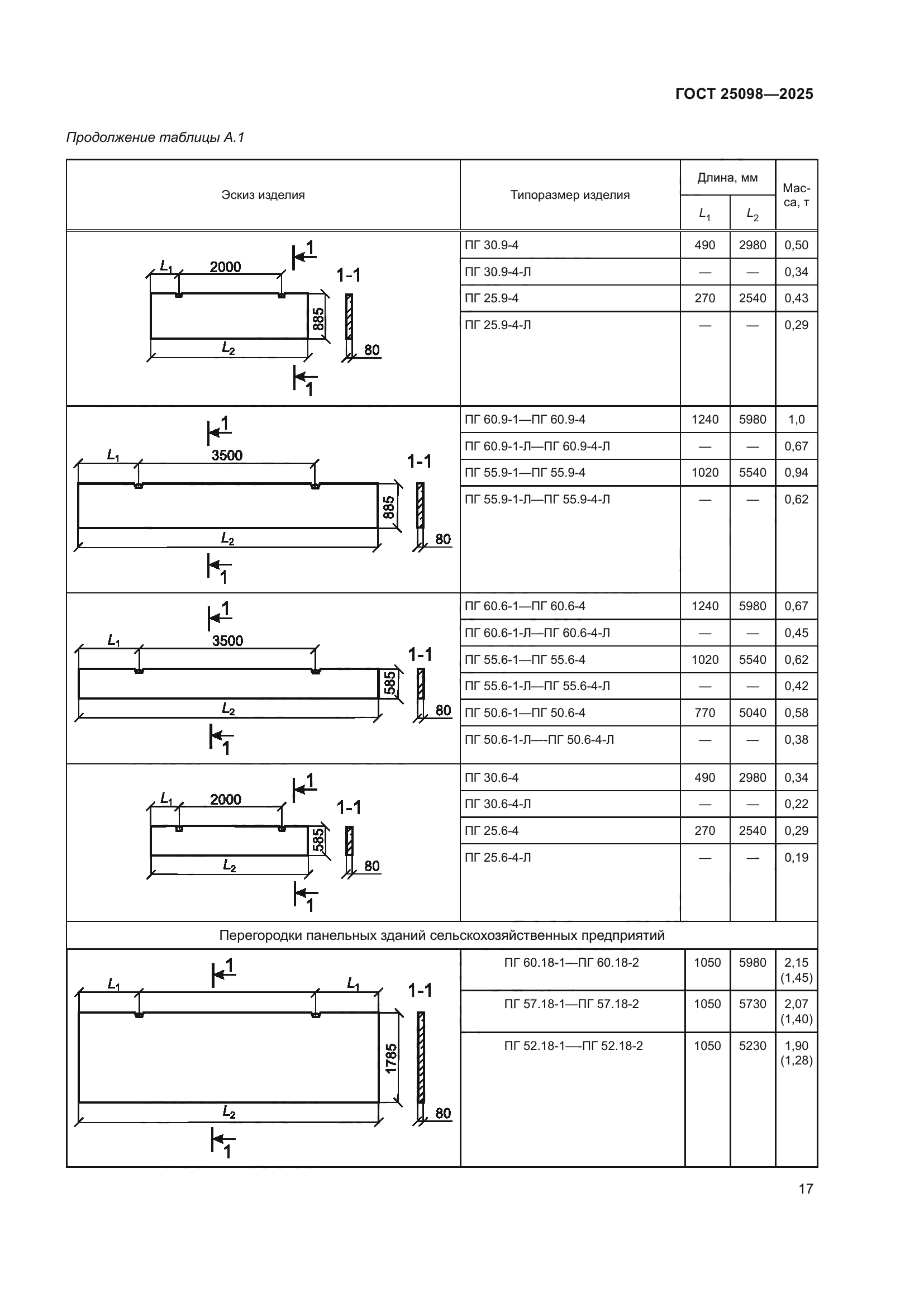
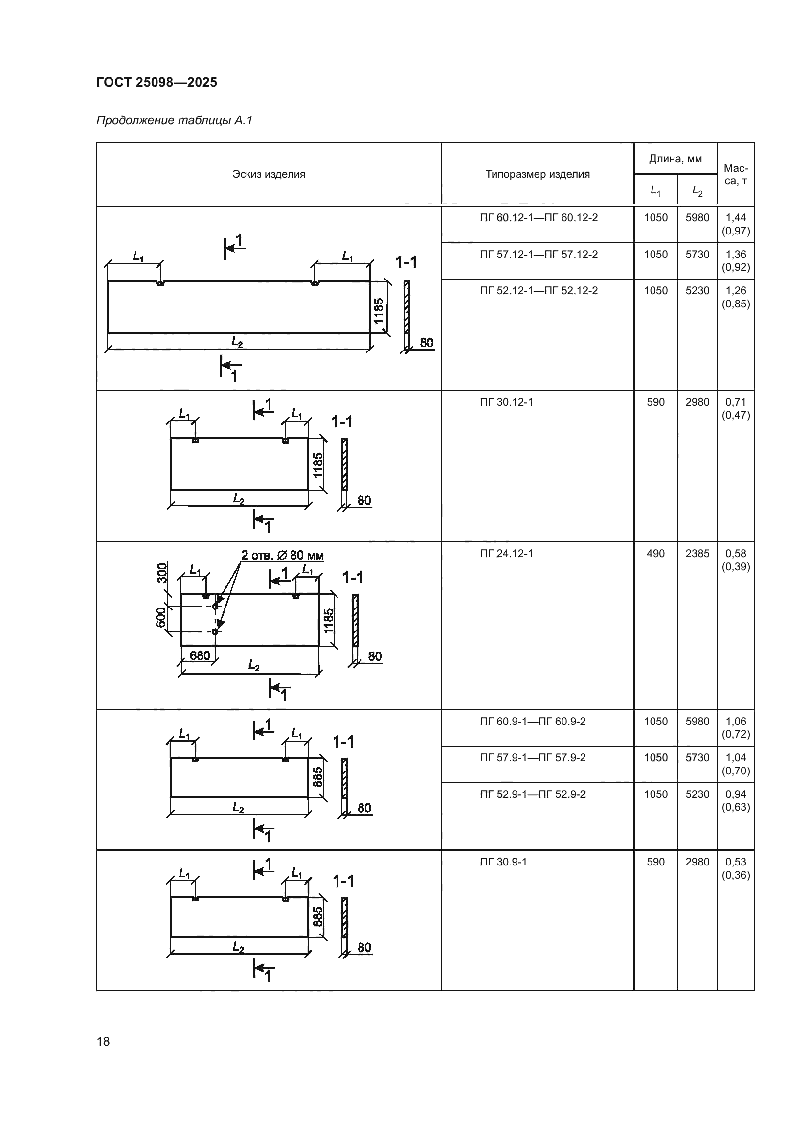
| Область применения: | Настоящий стандарт устанавливает технические требования, методы контроля и правила приемки, транспортирования и хранения железобетонных панелей, изготовляемых из тяжелого или легкого бетона. Панели предназначаются для перегородок зданий промышленных и сельскохозяйственных предприятий |
| Расположен в: | |























