|
|
 ГОСТ IEC 60695-11-10-2016
Испытания на пожароопасность. Часть 11-10. Испытательное пламя. Методы испытаний на горение горизонтально или вертикально ориентированных образцов с использованием пламени мощностью 50 Вт
| Обозначение: |  ГОСТ IEC 60695-11-10-2016 |
| Статус: | принят |
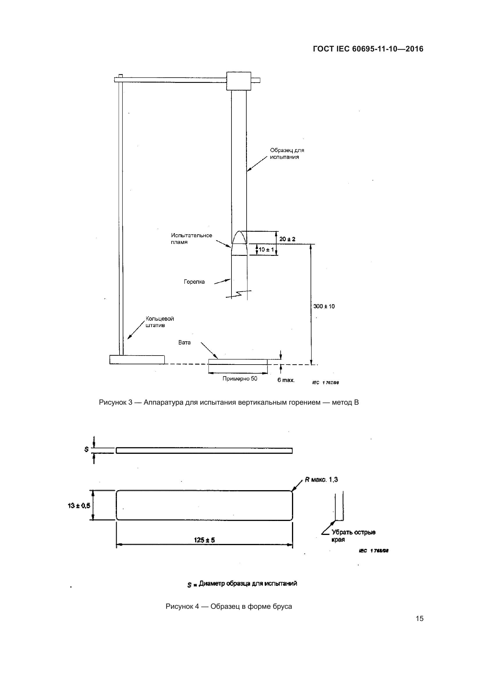
| Название рус.: | Испытания на пожароопасность. Часть 11-10. Испытательное пламя. Методы испытаний на горение горизонтально или вертикально ориентированных образцов с использованием пламени мощностью 50 Вт | | Название англ.: | Fire hazard testing. Part 11-10. Test flames. 50 W flame horizontal and vertical flame test methods | | Дата актуализации текста: | 01.01.2026 | | Дата актуализации описания: | 01.01.2026 | | Дата регистрации: | 28.06.2016 | | Дата издания: | 26.12.2025 | | Дата введения: | 01.01.2027 | | Аутентичен стандартам: | IEC 60695-11-10(2013) | | Область применения: | Настоящий стандарт устанавливает методы предварительных лабораторных испытаний по сравнению свойств относительной горючести вертикально или горизонтально ориентированных образцов пластмассовых и других неметаллических материалов при воздействии источника небольшого пламени номинальной мощностью 50 Вт. Настоящие методы испытаний определяют либо линейную скорость горения, либо устойчивость материалов к возгоранию. Настоящие методы испытаний применяются к твердым и пористым материалам с номинальной плотностью не менее 250 кг/м3, определяемой по ISO 845. В настоящем стандарте установлены два метода испытаний. Метод А предназначен для проведения испытаний горизонтально ориентированных образцов для определения линейной скорости горения материалов в условиях, установленных в настоящем стандарте. Метод В предназначен для проведения испытаний вертикально ориентированных образцов для определения характеристик устойчивости материалов к возгоранию в условиях, установленных в настоящем стандарте. В методах испытаний, установленных в настоящем стандарте, предусмотрена система классификации (см. 8.4 и 9.4), которая может использоваться для определения свойств материалов или для предварительного выбора материалов для компонентов различных изделий. Основополагающие стандарты по безопасности предназначены для использования техническими комитетами при разработке стандартов в соответствии с положениями, установленными в IEC Guide 104 и ISO/IEC Guide 51. Основополагающие стандарты должны использоваться при разработке стандартов по безопасности на конкретную продукцию. Требования, методы и условия испытаний настоящего стандарта по безо-пасности не будут применяться, если на него нет соответствующей ссылки | |
| Расположен в: |
|
                              
|
|