На главную | База 1 | База 2 | База 3
Испытания и Сертификация Испытательный центр Орган по сертификации Строительная экспертиза Обследование зданий Тепловизионный контроль Ультразвуковой контроль Проектные работы Контроль качества строительства Нормативные базы Государственные стандартыДекларация о соответствии Единый перечень продукции ТС Классификатор государственных стандартов Общероссийский классификатор стандартов Обязательная сертификация Окп Тематические сборники Технические регламенты РФ Технические регламенты Таможенного союзаСтроительная документацияТехническая документация

ГОСТ Р 72348-2025

Аппараты теплообменные типа «труба в трубе». Общие технические условия

Обозначение: ГОСТ Р 72348-2025
Статус:принят
Название рус.:Аппараты теплообменные типа «труба в трубе». Общие технические условия
Название англ.:Pipe-in-pipe-type heat exchangers. General technical requirements
Дата актуализации текста:01.01.2026
Дата актуализации описания:01.01.2026
Дата издания:09.12.2025
Дата введения:01.02.2026
Нормативные ссылки:ГОСТ 9.014;ГОСТ 9.104;ГОСТ 9.302;ГОСТ 12.2.003;ГОСТ 12.3.002;ГОСТ 12.3.009;ГОСТ 12.4.026;ГОСТ 550;ГОСТ 8479;ГОСТ 8731;ГОСТ 8732;ГОСТ 8733;ГОСТ 8734;ГОСТ 9493;ГОСТ 9567;ГОСТ 9940;ГОСТ 9941;ГОСТ 12969;ГОСТ 12971;ГОСТ 13716;ГОСТ 14192;ГОСТ 15140;ГОСТ 15150;ГОСТ 15180;ГОСТ 15527;ГОСТ 16093;ГОСТ 17375;ГОСТ 17376;ГОСТ 19433;ГОСТ 21130;ГОСТ 21646;ГОСТ 23170;ГОСТ 24643;ГОСТ 24705;ГОСТ 25054;ГОСТ 25347;ГОСТ 28759.3;ГОСТ 28759.4;ГОСТ 28759.6;ГОСТ 28759.7;ГОСТ 28759.8;ГОСТ 28759.9;ГОСТ 28759.10;ГОСТ 28759.11;ГОСТ 30753;ГОСТ 31441.1;ГОСТ 32528;ГОСТ 32678;ГОСТ 33259;ГОСТ 34233.1;ГОСТ 34233.2;ГОСТ 34233.3;ГОСТ 34233.4;ГОСТ 34233.5;ГОСТ 34233.6;ГОСТ 34233.7;ГОСТ 34233.10;ГОСТ 34283;ГОСТ 34347-2017;ГОСТ 34655;ГОСТ 34785;ГОСТ 34951;ГОСТ 35094;ГОСТ Р 2.601;ГОСТ Р 52376;ГОСТ Р 55601-2013;ГОСТ Р 71796;ГОСТ Р 71986;ГОСТ Р ИСО 8501-1;ГОСТ Р ИСО 16809;СП 16.13330.2017;СП 131.13330.2020
Область применения:Настоящий стандарт распространяется на теплообменные аппараты типа «труба в трубе», предназначенные для осуществления теплообменных процессов в технологических установках химической, нефтехимической, нефтеперерабатывающей и других отраслей промышленности
Расположен в:Государственные стандарты Общероссийский классификатор стандартов Химическая промышленность Оборудование для химической промышленности Теплообменники Добыча и переработка нефти, газа и смежные производства Оборудование для нефтяной и газовой промышленности Технологическое оборудование Оборудование для переработки нефти, нефтяных продуктов и природного газа
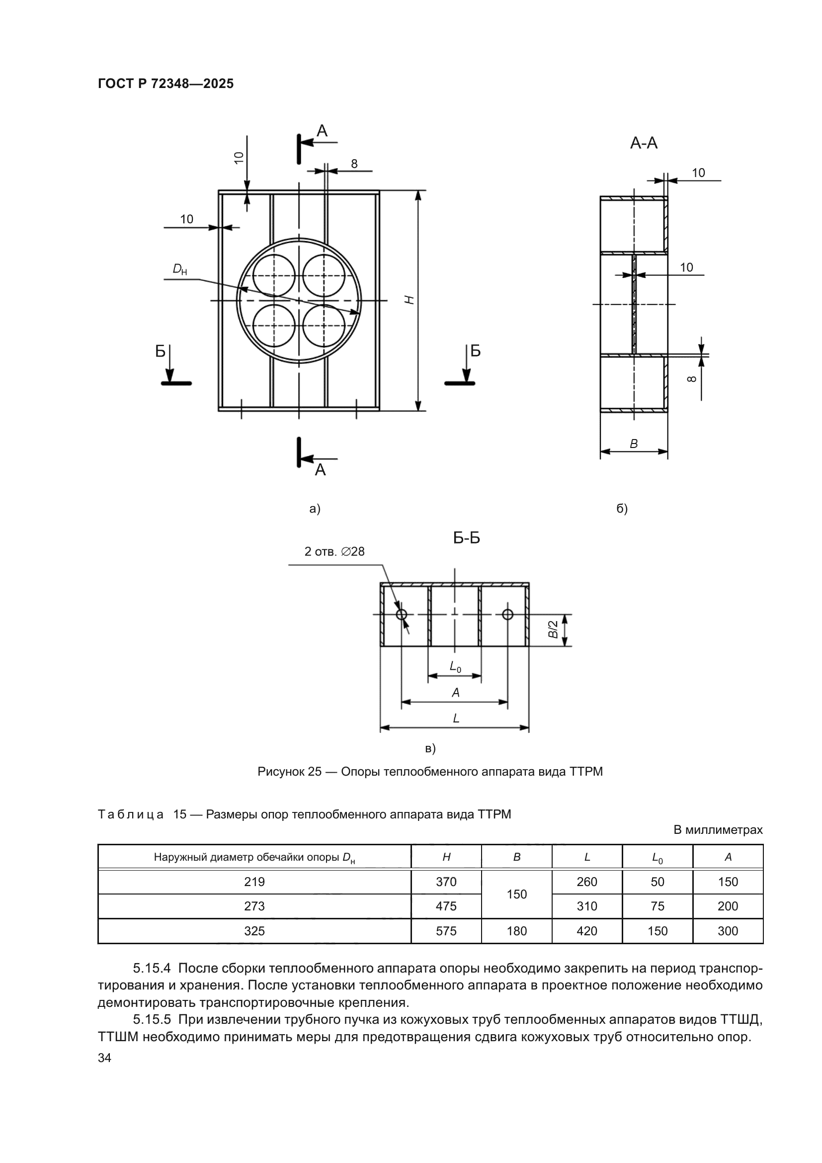
ГОСТ Р 72348-2025ГОСТ Р 72348-2025ГОСТ Р 72348-2025ГОСТ Р 72348-2025ГОСТ Р 72348-2025ГОСТ Р 72348-2025ГОСТ Р 72348-2025ГОСТ Р 72348-2025ГОСТ Р 72348-2025ГОСТ Р 72348-2025ГОСТ Р 72348-2025ГОСТ Р 72348-2025ГОСТ Р 72348-2025ГОСТ Р 72348-2025ГОСТ Р 72348-2025ГОСТ Р 72348-2025ГОСТ Р 72348-2025ГОСТ Р 72348-2025ГОСТ Р 72348-2025ГОСТ Р 72348-2025ГОСТ Р 72348-2025ГОСТ Р 72348-2025ГОСТ Р 72348-2025ГОСТ Р 72348-2025ГОСТ Р 72348-2025ГОСТ Р 72348-2025ГОСТ Р 72348-2025ГОСТ Р 72348-2025ГОСТ Р 72348-2025ГОСТ Р 72348-2025ГОСТ Р 72348-2025ГОСТ Р 72348-2025ГОСТ Р 72348-2025ГОСТ Р 72348-2025ГОСТ Р 72348-2025ГОСТ Р 72348-2025ГОСТ Р 72348-2025ГОСТ Р 72348-2025ГОСТ Р 72348-2025ГОСТ Р 72348-2025ГОСТ Р 72348-2025ГОСТ Р 72348-2025ГОСТ Р 72348-2025ГОСТ Р 72348-2025ГОСТ Р 72348-2025ГОСТ Р 72348-2025ГОСТ Р 72348-2025ГОСТ Р 72348-2025ГОСТ Р 72348-2025ГОСТ Р 72348-2025ГОСТ Р 72348-2025ГОСТ Р 72348-2025ГОСТ Р 72348-2025ГОСТ Р 72348-2025ГОСТ Р 72348-2025ГОСТ Р 72348-2025ГОСТ Р 72348-2025ГОСТ Р 72348-2025ГОСТ Р 72348-2025ГОСТ Р 72348-2025ГОСТ Р 72348-2025ГОСТ Р 72348-2025ГОСТ Р 72348-2025ГОСТ Р 72348-2025ГОСТ Р 72348-2025ГОСТ Р 72348-2025